Arts Thread

Caty Mills
Architecture

welsh school of architecture, cardiff university

Graduates: 2025

Specialisms: Architecture / Digital Design / Drawing

My location: London, United Kingdom

caty-mills ArtsThread Profile
welsh school of architecture, cardiff university

Caty Mills

caty-mills ArtsThread Profile

First Name: Caty

Last Name: Mills

University / College: welsh school of architecture, cardiff university

Course / Program: Architecture

Graduates: 2025

Specialisms: Architecture / Digital Design / Drawing

My Location: London, United Kingdom

About

My name is Caty, I am a recent graduate of Cardiff University’s BSc programme. I have spent my time at university honing my creative communication skills and learning to push my designs to create proposals that make people’s lives better. My hope is that my passion for the built environment comes across in my commitment to design spaces that anyone can appreciate, whether they have experience of the industry or not. My fine art background has been an incredible foundation for me to approach the fast-changing architecture industry over the last three years. I have pushed myself to learn new digital and analogue methods and am keen to enter into a practice as a Part 1 Assistant which will both challenge and support me in this.

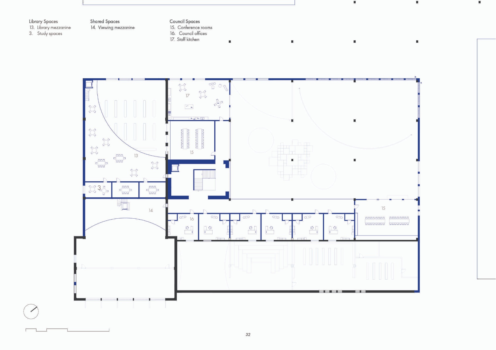
memories in steel

Specialisms:

Architecture

This retrofit proposal for a set of civic buildings brings light, spatial connections and openness into the existing Hoover factory to preserve memories of place and simultaneously create new ones. The quality of space is intended to unfold and rework itself, shaped by communal use over time. Much of Hoover’s steel structure is retained and celebrated, while other elements of the original building are dismantled and playfully reused throughout the scheme. At masterplan scale, the proposed buildings act as a passageway between housing sites, providing access to an extensive programme of community spaces. The detailed focus of this project is on one of the four buildings: Merthyr Town Hall and Library.